top of page
GAN
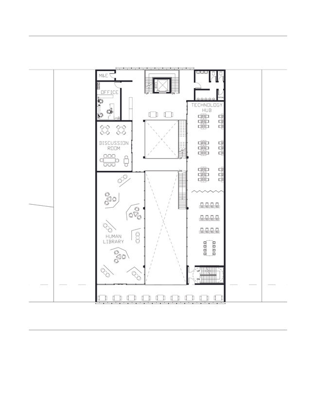
A - Z | Community Library
2018 | KLANG, SELANGOR | B.Arch Studio 5
This studio project is a collaboration with Think City's research studies project at Taylor's University for the area to be:
a) a place for the community and,
b) have an active frontage to the streets.
Sited amidst the old city of Klang, A-Z is a community library within an urban infill site with the idea to foster engagement between the diverse communities — between the white-collar and blue-collar, between the immigrants and locals. The library is designed to allow the people of Klang and all those who pass by to stop, relax and build relationships while also allowing them to enhance their knowledge with the rich resources in the library.
bottom of page












